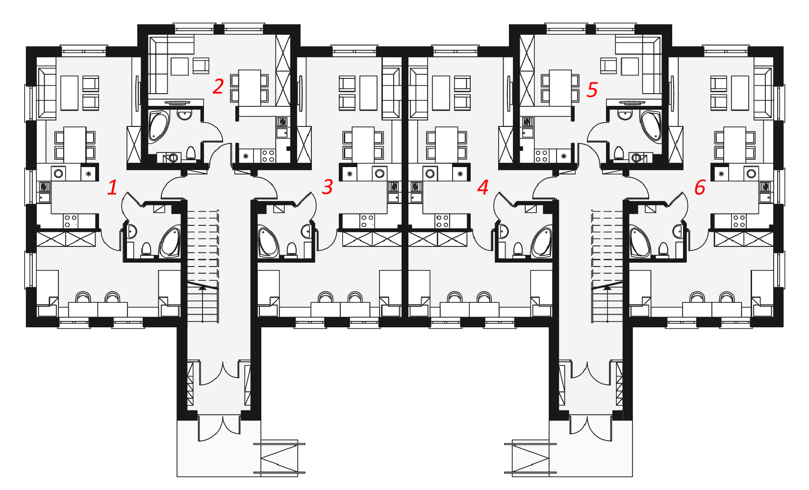
Parter
(m²)
1. Mieszkanie
52,05
2. Mieszkanie
28,88
3. Mieszkanie
52,05
(m²)
4. Mieszkanie
52,05
5. Mieszkanie
28,88
6. Mieszkanie
52,05
(Kliknij na grafikę aby ją powiększyć)
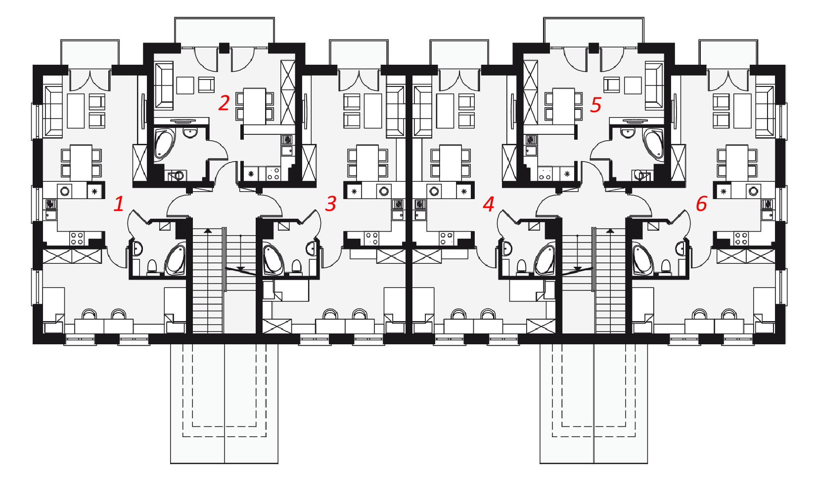
Piętro I
(m²)
1. Mieszkanie
51,72
2. Mieszkanie
28,59
3. Mieszkanie
51,72
(m²)
4. Mieszkanie
51,72
5. Mieszkanie
28,59
6. Mieszkanie
51,72
(Kliknij na grafikę aby ją powiększyć)
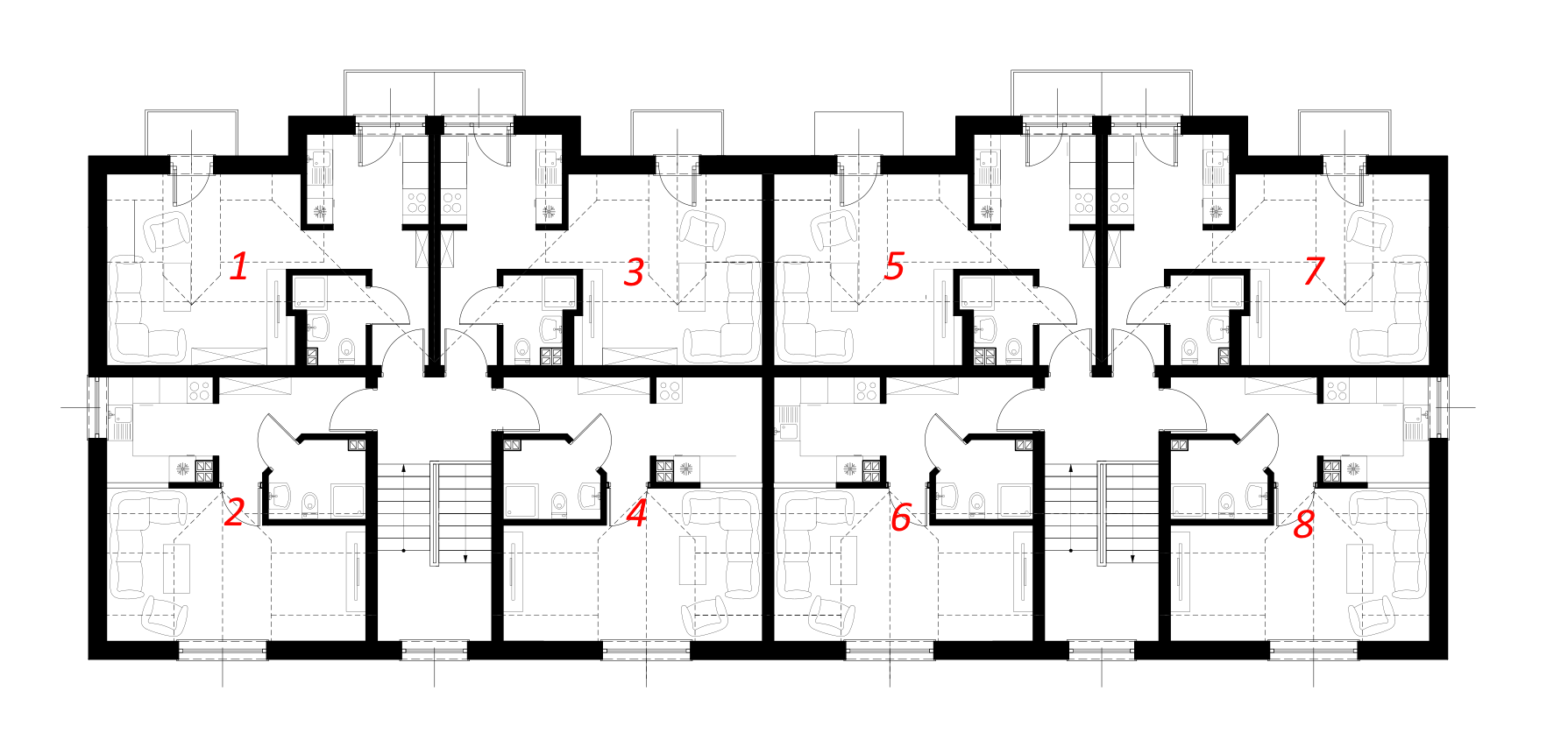
Piętro II / poddasze
(m²)
1. Mieszkanie
28,00
2. Mieszkanie
28,80
3. Mieszkanie
28,00
4. Mieszkanie
28,80
(m²)
5. Mieszkanie
28,00
6. Mieszkanie
28,80
7. Mieszkanie
28,00
8. Mieszkanie
28,80
* Powierzchnia "po podłodze" mieszkań na drugim piętrze wynosi 33m²
(Kliknij na grafikę aby ją powiększyć)
